Tipos de viviendas

Duplex

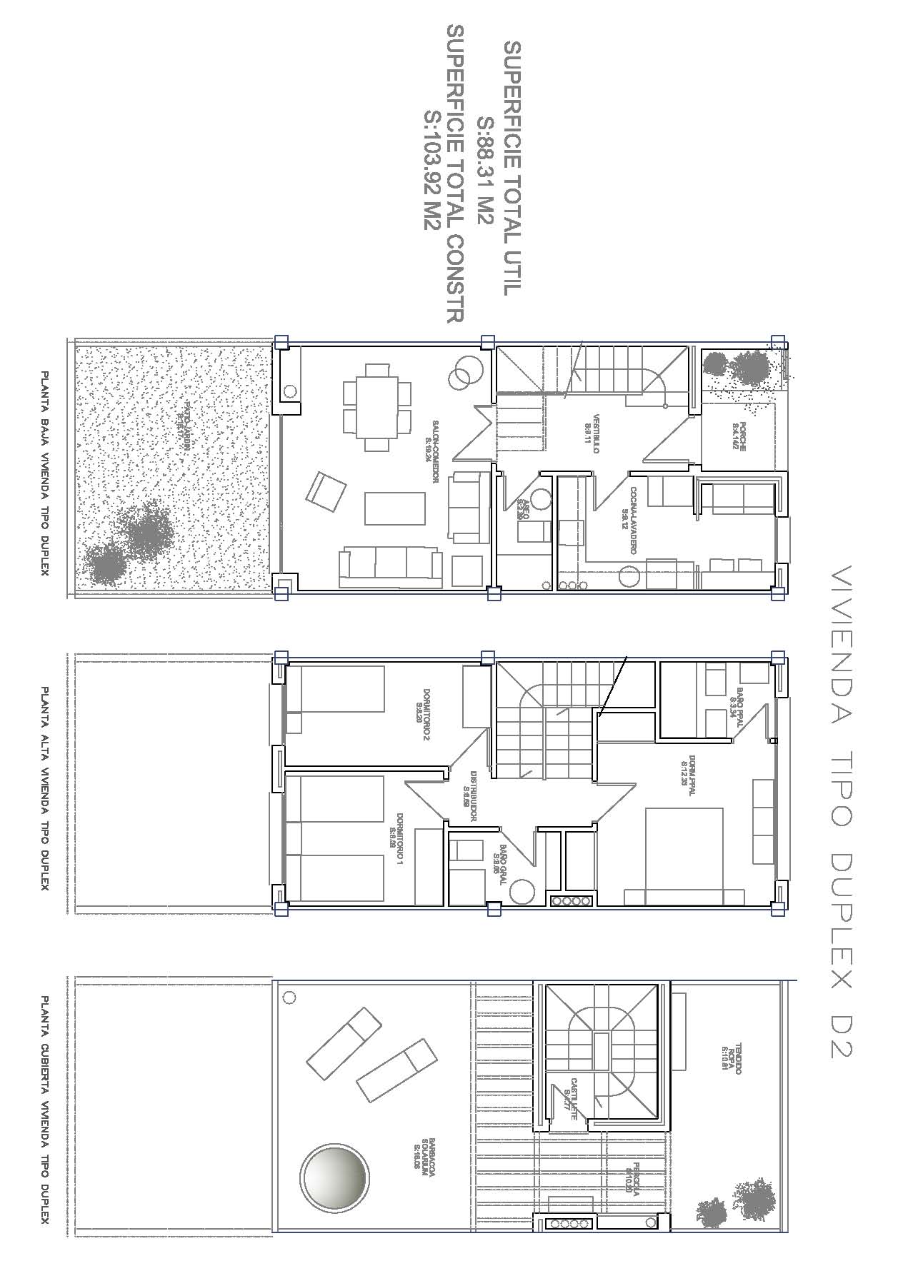
Construcción de 17 Duplex (o casas adosadas) en régimen de Vivienda Protegida Municipal o Autonómico, siendo la superficie máxima de  90 metros cuadrados útiles. Quedando la construcción de viviendas para familias numerosas condicionadas a la aprobación por la cooperativa y viabilidad económica.

Régimen de VPO. Régimen Municipal o Autonómico

Precio el metro util: 1743,40 Euros (iva y gastos no incluidos)

Distribución de la vivienda

  • Planta baja: Porche de entrada, cocina, aseo, distribuidor, salón y patio (la superficie del mismo no computan en los metros útiles de la vivienda)
  • Plata Primera: Dormitorio principal, dos dormitorios y dos cuartos de baño.
  • Cubierta. Azotea toda la planta de la vivienda (la superficie del mismo no computan en los metros útiles de la vivienda)

superficiesduplex2_atalayasierra

Picture 3 of 3

Los planos e imágenes presentados son meramente informativos, pudiendo los mismos sufrir cambios por motivos legales, arquitectónicos o de los socios.