Tipos de viviendas

Pisos

Construcción de entre 4 pisos de superficie de entre 69 y 71 metros útiles, quedando condicionado la realización de un piso de mayor superficie a las necesidades de los socios y viabilidad técnica y económica.

Régimen de vivienda de VPO. Régimen Municipal o Autonómico

Precio del metro útil. 1.743,40 Euros

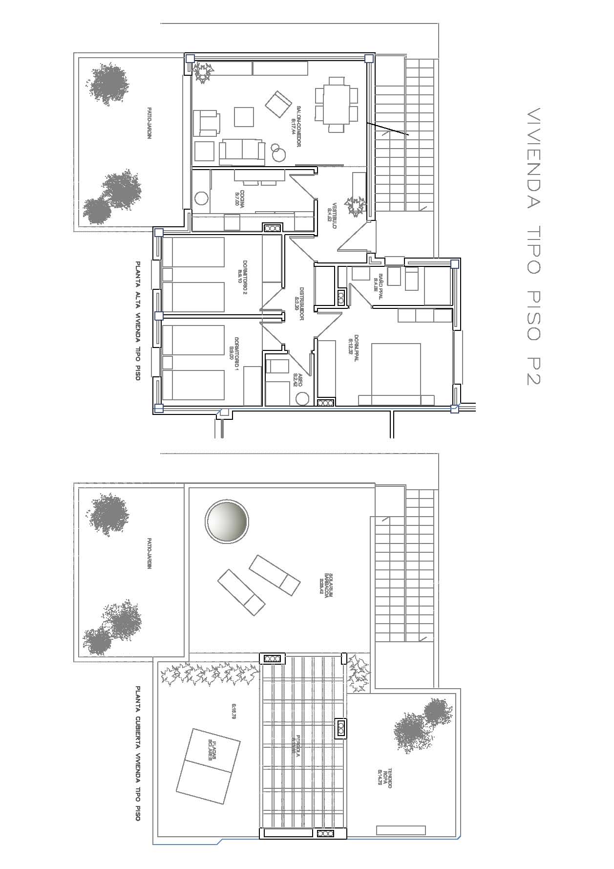
Los pisos están formados por edificaciones de aspecto similar a los Duplex, realizándose construcción con Bajo más una planta, con la siguiente distribución:

  • Planta baja. Piso de tres dormitorios siendo uno de ellos de mínimo 12 metros cuadrados, cuarto de baño, aseo, cocina, salón y patio de uso privativo
  • Planta baja. Piso de tres dormitorios siendo uno de ellos de mínimo 12 metros cuadrados, cuarto de baño, aseo, cocina, salón y azotea de uso privativo.

superficiespiso2bis_atalayasierra

Picture 1 of 4